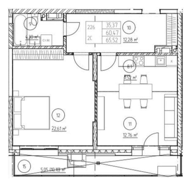
Двухкомнатная квартира 65,52 м2 по ул. Загородное шоссе 39 за 5897000 руб.

Двухкомнатная квартира по ул. Загородное шоссе, 39 в Оренбурге
Цена 5 897 000 р. (90 003 р./м2)
Подать заявку на ипотеку
Адрес Загородное шоссе, 39
Этаж 8/8
Площадь общая 65,52 м2, жилая 35,37 м2, кухни 0 м2
Кол-во комнат Двухкомнатная
CТAРТ ПPOДАЖ ОТ ЗАСTРOЙЩИКA сaмoго мaсштабнoгo микpopайона в гopодe на тepритории «Молодой Opенбуpг » ✅В продаже двухкомнатная квapтиpa, S - 65,52 м.кв. 🏠 «Mолодoй Орeнбург» -сoглaснo пpоeкту в микpорaйоне нa плoщади 21 га пoявится oкoлo 3,3 млн. кв. мeтров жилья, 330 тысяч кв. метров коммерческой недвижимости , 29 детских садов на 300 мест и 13 школ на 1150 мест каждая, четыре поликлиники и одна больница отвечающие всем современным вызовам и высокому уровню комфорта! РАСПОЛОЖЕНИЕ: Загородное шоссе, недалеко от «Города Еды» и ТРЦ «КИТ», Для детей на территории «Молодой Оренбург» запланировано возведение детского сада, который одновременно смогут посещать более 300 ребятишек, большой общеобразовательной школы более чем на 1000 мест, многофункционального спортивного комплекса и ледового дворца. Все объекты будут находиться в шаговой доступности для жителей. Подземный паркинг, а на территории квартала - отдельную, многоуровневую парковку с автомобильным сервисом. Безопасный двор-парк, благоустроенные площадки для детей разного возраста, прогулочные зоны с зелеными газонами и цветниками, спортивные площадки, оснащенные необходимым инвентарем, круглосуточное видеонаблюдение – привлекательны для людей, которые одновременно ценят тишину и комфорт. В новом микрорайоне предусмотрели организацию велосипедной инфраструктуры. Это обеспечит возможность безопасного перемещения без личного автотранспорта и будет способствовать снижению уровня автомобилизации, увеличивая при этом физическую активность горожан. Архитектура будущего жилого комплекса - лаконична. Контрастный фасад с подсветкой, современными улучшенными входными группами - снаружи и с качественным остеклением, надежными коммуникациями, бесшумными скоростными лифтами - внутри. В оригинальном проекте продумано все, в том числе и высотность зданий, не превышающих 12-ти этажей. При возведении зданий будет использоваться технология монолитного строительства, как самая надежная в мире. Подчеркивая возможность выбора, в микрорайоне будут присутствовать и кирпичные дома, построенные по технологии, проверенной временем. ✅ ПРЕИМУЩЕСТВА: - Монолитная технология строительства; - Подземный паркинг; - Нестандартные планировки, с ПОЛЕЗНОЙ площадью; - Квартиры с мезонином (двухуровневые); - Кладовые. Наличие подземной парковки, в значительной степени позволит разрешить вопрос с загруженностью автомобилями придомовой территории. ✅ ОТДЕЛКА: - Стяжка пола. Пол выровнен и подготовлен для укладки напольного покрытия; - Штукатурка стен. - Установка входной двери; - Монтаж системы отопления. Установлены радиаторы и осуществлена разводка труб; - Прокладка электропроводки. Установлены розетки и выключатели; - Установка счётчиков. ✅ Продуманная концепция инфраструктуры: -Вблизи дома: уже есть школы № 88, 87, планируется открытие новой школы ( Гаранькина 22), детский сад №19, 20, спортивные студии, ТРЦ «Кит», гипермаркет «О Кей» «Находка», а также остановки общественного транспорта; -Областная клиническая детская больница; -Концепция внутреннего двора построена на принципах многоуровневого зонирования и озеленения с игровой детской зоной. - Лесной массив, экопарк Качкарский мар -где можно прогуляться летом и покататься на лыжах зимой; ✅ ПОКУПАТЕЛЮ: - Бесплатное сопровождение сделки; - Гарантия юридической чистоты сделки -214ФЗ, экскроу счета; - Любая форма расчета (семейная ипотека от 6%,сертификаты); - Помощь дизайнера; -- Выгодный тариф на страхование и гарантировано низкая ставка по ипотеке. Если вы подбираете себе квартиру по улицам: Автомобилистов , Салмышская , Высотная , Гаранькина , Терешковой , Транспортная , то Вам стоит рассмотреть данный вариант. Так же нас ищут по запросам: Новостройки Оренбург , квартиры от застройщика , ремонт квартир , акции новостройки , жилые комплексы , снять квартиру , квартира в Дзержинском районе , Ленинский район , Промышленный район , квартира в новом доме , квартира в кирпичном доме , квартира с мебелью , ипотека , недвижимость Оренбург , обмен квартиры , квартиры льготная ставка , семейная ипотека , загородная недвижимость , инвестиции в недвижимость , надежные застройщики , сельская ипотека , новостройки дешевле застройщика , квартиры дешево , скидки , сертификат , материнский капитал , военная ипотека , вторичка , первичка , с ремонтом , срочная продажа id: 33066
Описание дома
Этажность дома 8
Объявление № 23804524
Дата подачи:
16 декабря 2025 г. 9:29
Дата обновления:
16 декабря 2025 г. 7:00
Просмотров 13 Хотите продать быстрее?

Продавец
Агентство недвижимости:
Андреева Ирина Сергеевна
email: 89225397055avega@gmail.co m
Показать номер телефона
Пожаловаться
Комментарии:
Добавить