Однокомнатная квартира 42,18 м2 по ул. проспект Победы 153 за 3584210 руб.

Однокомнатная квартира по ул. проспект Победы, 153 в Оренбурге
Цена 3 584 210 р. (84 974 р./м2)
Подать заявку на ипотеку
Адрес проспект Победы, 153
Этаж 13/20
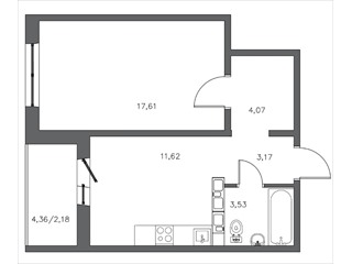
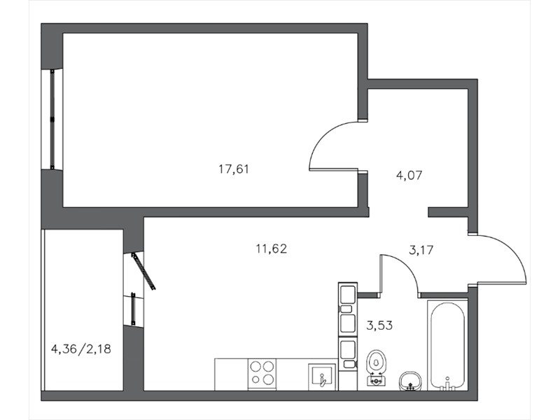
Площадь общая 42,18 м2, жилая 0 м2, кухни 0 м2
Кол-во комнат Однокомнатная
🏠 S — 42,18 кв.м в продаже однокомнатная квартира. 🏠 Расположение: ЖК НОВЫЙ ВЗГЛЯД, ориентир - Инвертор ✅ Преимущества НОВЫЙ ВЗГЛЯД: — это три одноподъездных 20-этажных дома, которые находятся на первой линии проспекта Победы, в районе улицы Рокоссовского, которая соединяет две главные магистрали города — Современные лифты с минимальным уровнем шума: 2 легковых и 1 грузовой — Контроль доступа в подъезд: IP-домофония и видеонаблюдение 24/7 на территории и в местах общего пользования Жители НОВЫЙ ВЗГЛЯД не испытывают стрессов, связанных с дорогой, ведь работа, учеба, развлечения все находится рядом. Это позволяет уделять больше времени тому, что по-настоящему важно и ценно ✅ ОТДЕЛКА КВАРТИР: · качественная черновая; · современные радиаторы отопления отопления; · счетчики ГВС и ХВС; · выполнена электроразводка по квартире; · качественные двухкамерные стеклопакеты; · входная металлическая дверь. Нет времени и желания на ремонт? Возьмем заботы на себя - услуга "ремонт под ключ" при покупке квартиры по выгодной цене! ✅ ИНФРАСТРУКТУРА: ✔️ НОВЫЙ ВЗГЛЯД окружил себя престижными образовательными учреждениями для всех возрастов. Ваши дети всегда будут рядом с домом: вблизи расположены новый детский сад, детская спортивная школа гимнастики и акробатики № 10 и строится школа, напротив - лицей №3, школа 18, детские сады № 160, 134, 108 ✔️ НОВЫЙ ВЗГЛЯД расположен в живой и разнообразной части города - городские сервисы, эко-магазины - Фасоль, Красное и Белое, современные ритейл маркеты - Метро, ЛЕНТА, и многое другое, что позволяет экономить время и уделять больше внимание тому, что по-настоящему важно и ценно ✔️ В 2 минутах - современный парк на Березке, который составляет 938,8 тыс. кв. м — обустроены пешеходно-тропиночной сети, площадки для отдыха и детской игровой зоны. Здесь каждый обретет не только свое любимое место отдыха, но и излюбленные места встреч в любое время суток и года 🔺Остановка Инвертор. Здесь ходят 40,45,52,36,38,63 и троллейбус 12. Возможно уехать в любую точку города! id: 33663
Описание дома
Этажность дома 20
Объявление № 23804435
Дата подачи:
16 декабря 2025 г. 9:28
Дата обновления:
16 декабря 2025 г. 7:00
Просмотров 11 Хотите продать быстрее?

Продавец
Агентство недвижимости:
Фомина Ксения Дмитриевна
email: avega-rop@yandex.ru
Показать номер телефона
Пожаловаться
Комментарии:
Добавить