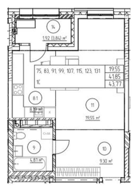
Однокомнатная квартира 43,77 м2 по ул. Загородное шоссе 39 за 3939000 руб.

Однокомнатная квартира по ул. Загородное шоссе, 39 в Оренбурге
Цена 3 939 000 р. (89 993 р./м2)
Подать заявку на ипотеку
Адрес Загородное шоссе, 39
Этаж 6/9
Площадь общая 43,77 м2, жилая 0 м2, кухни 15 м2
Кол-во комнат Однокомнатная
Старт продаж в самом крупном проекте города — жилом комплексе «Молодой Оренбург»! ✅ B продаже однокомнатная квартира, S - 43.77 кв.м. 🏠 ЖК «Молодой Оренбург» - в новом микрорайоне появится около 3,3 млн. кв. метров жилья, 330 тысяч кв. метров коммерческой недвижимости, 29 детских садов на 300 мест и 13 школ на 1150 мест каждая, четыре поликлиники и одна больница. Новый микрорайон должен дать городу 6480 новых рабочих мест. ✅ ПРЕИМУЩЕСТВА: - Монолитная технология строительства; - Подземный паркинг; - Нестандартные планировки, с ПОЛЕЗНОЙ площадью; - Квартиры с мезонином (двухуровневая); - Кладовые. Наличие подземной парковки, в значительной степени позволит разрешить вопрос с загруженностью автомобилями придомовой территории. ✅ ОТДЕЛКА: - Стяжка пола. Пол выровнен и подготовлен для укладки напольного покрытия; - Штукатурка стен. Стены выровнены и готовы под покраску или поклейку обоев; - Установка входной двери; - Монтаж системы отопления. Установлены радиаторы и осуществлена разводка труб; - Прокладка электропроводки. Установлены розетки и выключатели; - Установка счётчиков. Возможно приобрести квартиру с ремонтом под ключ! ✅ Продуманная концепция инфраструктуры: -Вблизи дома: школы № 88, 87, планируется открытие новых школ (на Гаранькина и внутри жилого комплекса), детский сад №19, 20, спортивные студии, ТРЦ «Кит», гипермаркет «О Кей» «Находка», а также остановки общественного транспорта; -Областная клиническая детская больница; -Концепция внутреннего двора построена на принципах многоуровневого зонирования и озеленения с игровой детской зоной. - Лесной массив, экопарк Качкарский мар -где можно прогуляться летом и покататься на лыжах зимой; ✅ ПОКУПАТЕЛЮ: - Бесплатное сопровождение сделки; - Гарантия юридической чистоты сделки -214ФЗ, экскроу счета; - Любая форма расчета (семейная ипотека от 6%,сертификаты); - Ремонт под ключ; - Купив с нами Вы получаете бесплатную консультацию от дизайнера; -- Выгодный тариф на страхование. РАБОТАЕМ ДЛЯ ВАС С ЗАБОТОЙ И БЕЗ КОМИССИИ! Если вы ищите квартиру по улицам: проспект Победы , Терешковой , Рокоссовского , Березки , Транспортной , то вам стоит рассмотреть данный вариант.
Описание дома
Этажность дома 9
Объявление № 22726192
Дата подачи:
3 июля 2025 г. 6:51
Дата обновления:
2 июля 2025 г. 7:00
Просмотров 23 Хотите продать быстрее?

Продавец
Агентство недвижимости:
Лисичкина Оксана Олеговна
email: milincevico@gmail.com
Показать номер телефона
Пожаловаться
Комментарии:
Добавить