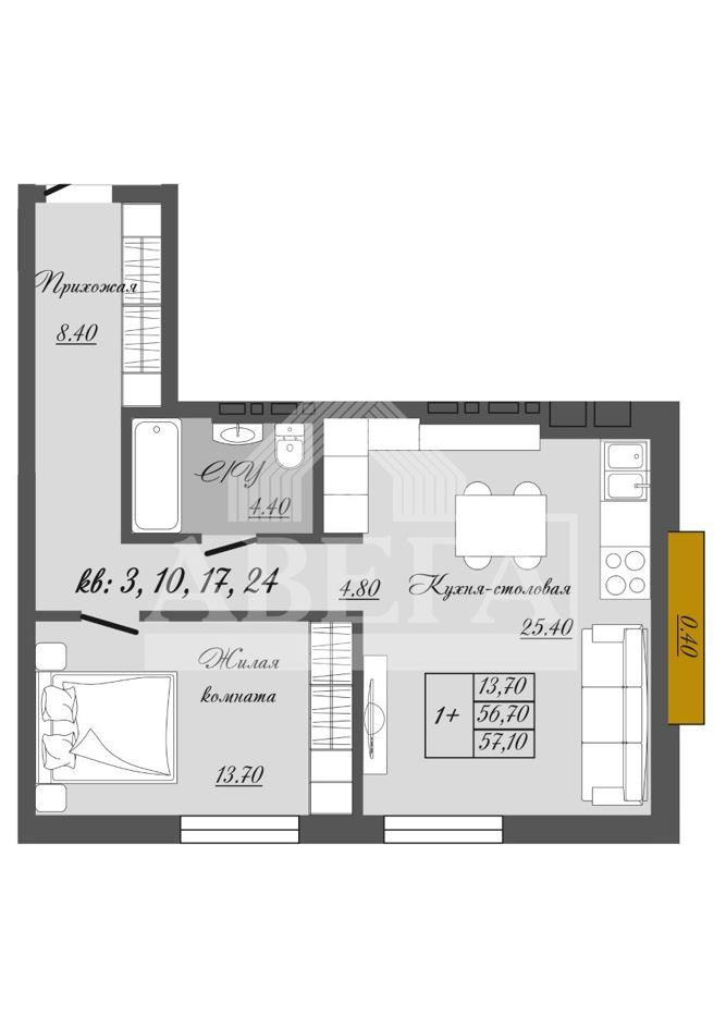
Однокомнатная квартира 57,10 м2 по ул. Красная Площадь 7 за 8279500 руб.

Однокомнатная квартира по ул. Красная Площадь, 7 в Оренбурге
Цена 8 279 500 р. (145 000 р./м2)
Подать заявку на ипотеку
Адрес Красная Площадь, 7
Этаж 2/8
Площадь общая 57,1 м2, жилая 0 м2, кухни 0 м2
Кол-во комнат Однокомнатная
🏙️Клубный дом «Благородный» в историческом центре города Оренбурга. Старт продаж ❗ Самая выгодная стоимость до конца октября, успейте забронировать ❗ Ориентир: Электрозаводской переулок, 5, район Красной площади. В последние годы Оренбург становится все более привлекательным для жизни и инвестиций. Среди множества новых жилых проектов, клубный дом «Благородный» выделяется своим уникальным предложением и высоким уровнем комфорта. Расположенный в самом сердце города, он предоставляет жителям возможность наслаждаться исторической атмосферой при современных удобствах. В продаже однокомнатная квартира - 57,1 кв.м. Преимущества клубного дома «Благородный»: - квартиры со свободной планировкой. Это позволяет будущим владельцам адаптировать пространство под свои личные нужды и предпочтения; - видовые квартиры с собственными террасами, что является еще одним значительным преимуществом. Терраса – это идеальное место для отдыха с чашкой кофе или для летних вечеринок с друзьями; - витражные энергосберегающие окна, которые обеспечивают отличную изоляцию. Это не только снижает затраты на отопление и охлаждение, но и создает комфортный микроклимат внутри квартир; - лобби с премиальной отделкой. Стильный, уютный и продуманный интерьер лобби подчеркивает высокий уровень комфорта и респектабельности этого места; - предусмотрены специальные зоны для отдыха и игр, что делает его отличным местом для проживания с маленькими детьми; - комната матери и ребенка, колясочная и благоустроенные зоны отдыха способствуют комфортной и безопасной жизни родителей и их детей; - игровые площадки, где маленькие жители могут провести время на свежем воздухе, а родители могут быть уверены в их безопасности; - подземный паркинг позволяет защитить автомобили от непогоды и угона; - закрытый двор с ограниченным доступом предоставляет жителям дополнительный уровень безопасности и приватности; - внешняя отделка клубного дома выполнена из долговечной клинкерной плитки. Этот материал не только обеспечивает отличные эксплуатационные характеристики, но и придаёт зданию элегантный и современный вид. 🔨Отделка: Качественная чистовая отделка, что особенно важно для тех, кто ценит своё время. Такой вариант позволяет будущим владельцам избежать дополнительных затрат и хлопот, связанных с ремонтом. Чистовая отделка создает возможность сразу же заселиться и наслаждаться новым домом. 🎁 Это — идеальный чистый холст для того, чтобы написать картину вашей жизни, а наши специалисты помогут быстро и по выгодной цене сделать ремонт “под ключ” и укомплектовать квартиру мебелью и декором для комфортной жизни. Электроразводка в каждой квартире выполнена высококвалифицированными специалистами. Все электросети соответствуют современным стандартам безопасности и удобства пользования. Это позволяет жителям без опасений подключать всю необходимую бытовую технику и электронику. 💰Клубный дом «Благородный»представляет собой не только превосходную жилую среду, но и выгодную инвестицию. Благодаря уникальному местоположению, современным характеристикам и высокому уровню комфорта, квартиры будут востребованы как для покупки, так и для аренды. Это делает проект привлекательным для инвесторов и тех, кто рассматривает приобретение жилья в Оренбурге. 🏪Инфраструктура: Клубный дом «Благородный» находится в историческом центре Оренбурга, который славится своими архитектурными памятниками и культурными достопримечательностями. Удобное расположение позволяет жителям пользоваться всеми преимуществами городской жизни – рядом находятся магазины, кафе, культурные учреждения и образовательные учреждения. К тому же, центр города предлагает высокий уровень транспортной доступности. Прямой доступ к основным дорогам и близость к остановкам общественного транспорта делают перемещение по городу легким и быстрым. Это особенно важно для тех, кто ценит свое время и хочет минимизировать затраты на поездки.
Описание дома
Этажность дома 8
Объявление № 22717822
Дата подачи:
2 июля 2025 г. 6:46
Дата обновления:
1 июля 2025 г. 7:00
Просмотров 31 Хотите продать быстрее?

Продавец
Агентство недвижимости:
НОВОСТРОЙКИ ЗАСТРОЙЩИК
email: ostatkiavega@gmail.com
Показать номер телефона
Пожаловаться
Комментарии:
Добавить